WOOSTER STREET

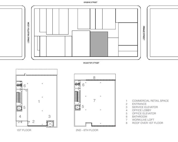
This triple- lot in the Soho Historic Landmark District is developed to contain a retail/gallery space on the street level and live/work lofts up above.

This six story structure respects and continues the rhythm and proportion of its neighboring buildings without artificially copying them.

The street facade is composed of three parts. A solid section with small openings enclosing circulation and public spaces. A translucent volume hovering above the street, containing the live/work lofts, and the base housing the retail and lobby space for the lofts.

Industrial materials such as aluminum panels and a fiberglass curtain-wall are proposed for the street enclosure as homage to the industrial cast iron buildings of this area.